Casa semindipendente in vendita

San Benedetto Del Tronto, Via Custoza - San Benedetto Del Tronto Centro
€ 200.000
5 locali 5 locali
178 Mq 178 Mq
3 bagni 3 bagni

Casa semindipendente in vendita

San Benedetto Del Tronto, Via Custoza - San Benedetto Del Tronto Centro

Descrizione annuncio

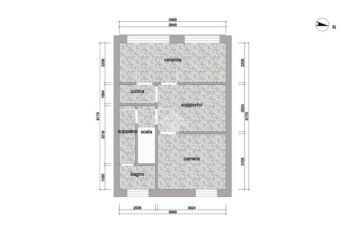
Nel cuore del Quartiere Marina, nella centralissima via Custoza si trova questa casa semindipendente di 178 mq distribuiti su tre livelli.

La casa ha accesso principale da via Custoza ed un accesso secondario da via Mentana; gode di una ottima luminosità avendo esposizione est-ovest. La costruzione risale alla metà degli anni '50 ed ha subito nel tempo alcuni lavori di ristrutturazione, ma necessita comunque di interventi di manutenzione per renderla adeguata agli odierni standard abitativi.

La casa si affaccia sul giardino pubblico di via Mentana e si trova a pochissima distanza dalla zona pedonale, garantendo un ambiente tranquillo e piacevole. La distribuzione dei locali e la dimensione del piano (60mq commerciali) offre la possibilità di realizzare tre distinte unità immobiliari, questo rende la proprietà ideale sia per famiglie numerose che per investitori alla ricerca di un'opportunità di sviluppo immobiliare. La posizione strategica e la versatilità degli spazi interni rappresentano un valore aggiunto per chi desidera coniugare comodità e potenzialità di personalizzazione.

Mostra tutto

Nelle vicinanze

Trasporto pubblico Trasporto pubblico
San Benedetto del Tronto
San Benedetto del Tronto
210 m
Trasporto pubblico
160 m
Piazza Nardone
Piazza Nardone
300 m
Ricariche auto elettriche Ricariche auto elettriche
McDonald's San Benedetto Del Tronto | EnelX Fast
1,4 Km
Scuole Scuole
Istituto Musicale "Antonio Vivaldi"
470 m
Scuola Elementare "Moretti"
500 m
Liceo Classico Statale "Giacomo Leopardi"
1,1 Km
Scuola Elementare
1,1 Km
Liceo Scientifico Statale "Benedetto Rosetti"
1,2 Km
Farmacia Farmacia
Farmacia Carlini
290 m
Farmacia Mercuri
790 m
Farmacia Rosini
960 m
Farmacia Angelini
990 m
Farmacia Cocci Grifoni
1,2 Km
Ospedali Ospedali
Clinica Stella Maris
460 m
Ospedale Civile "Madonna del Soccorso"
680 m
Ospedali
2,6 Km
Supermercati Supermercati
40 m
Todis
170 m
Tigre Amico
350 m
MD
420 m
Maxi Tigre
460 m
Negozi Negozi
OVS
430 m
Bakery Ciarrocchi Enrico
750 m
Negozi
830 m
Tremaroli
1,1 Km
Globo
1,3 Km
Bar Bar
Caffè Braccetti
70 m
Barcode
90 m
Caffè Mentana
100 m
Da Valerio
150 m
Bar Pizzeria Stazione
190 m
Ristoranti Ristoranti
Ristoranti
160 m
White Bakery
330 m
Ristorante Pizzeria Congusto
330 m
Osteria Pane e Vino
330 m
PesceAzzurro
340 m
Mostra tutto

Caratteristiche

Rif.:
61196910
Piano:
3 di 3 (Piano su più livelli)
Box:
1
Balconi:
4
Camere da letto:
4
Arredamento:
Assente
Mostra tutto
Prezzo Prezzo
€ 200.000
Rata mutuo Rata mutuo
€ 943 / mese
Proponi il tuo prezzoProponi il tuo prezzo

Classe Energetica

G
G
G
G
G
G
G
G
G
EP globale non rinnovabile:
175.00 kW h/m² anno
EP invernale del fabbricato:
EP estiva del fabbricato:
Anno di costruzione:
1952
Riscaldamento:
Autonomo
Tipo impianto:
A radiatori
Tipo alimentazione:
Metano

Ti interessa visionare l'immobile?

Fissa un appuntamento  Fissa un appuntamento

Richiedi informazioni

Clicca su Leggi per aprire l'informativa
* Questi campi sono obbligatori

Calcola il tuo mutuo

Semplice e senza impegno
Anticipo

( % )
Mutuo

( % )

pochi semplici passi

inserisci i tuoi dati
Questionario completato
Grazie per aver richiesto un appuntamento senza impegno con un nostro Consulente del Credito e Assicurativo.

Hai inserito correttamente tutti i dati necessari e a breve riceverai una e-mail con un link da convalidare per inviare i tuoi dati.
Affiliato
Studio San Benedetto Centro Sas
P.zza Garibaldi, 10 63039 San Benedetto Del Tronto (AP)

Il nostro staff


  • Rosario Brucciolo
    Affiliato

  • Frida Ferzi
    Coordinatrice

  • Eliseo Fazzini
    Affiliato
P.zza Garibaldi, 10 63039 San Benedetto Del Tronto (AP)
Zona: San Benedetto Centro
Mostra su mappa
Orari: lunedì-venerdì 09:00-13:00/15:30 (estivo 16:00)- 19:30; sabato chiusura ore 13:00; domenica chiuso.
Affiliato
Studio San Benedetto Centro Sas
P.zza Garibaldi, 10 63039 San Benedetto Del Tronto (AP)

2026 Tecnocasa Franchising S.p.A. - P. IVA 08365160152 - Via Monte Bianco 60/A 20089 Rozzano (MI). Ogni agenzia ha un proprio titolare ed è autonoma. Privacy policy | Policy utilizzo | Cookie policy